... на зида, който е с височина от 2 до 5 метра и в различните зони с дебелина от 80 см до 1 метър. След отстраняване
Автентичния Вид - Новини
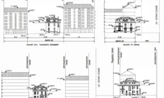
Две години след като Министерството на културата обяви тютюневия склад на
...... Междувременно складовете продължават да се рушат и статутът на паметници на културата, който им дава министерството, няма да е достатъчен за тяхното оцеляване, пише Трафикнюз.
Две години след като Министерството на културата обяви тютюневия склад на
...... възстановяване на сградите. Междувременно складовете продължаватда се рушат и статутът на паметници на културата, който им дава министереството, няма да е достатъчен за тяхното оцеляване.
Сграда на ул Велико Търново 32 в София която бе
...... Вие можете да допринесете за нашия стремеж към истината, неприкривана от финансови зависимости. Можете да помогнете единственият поръчител на съдържание да сте вие – читателите.
Приключи реставрацията на фасадата на Министерството на транспорта и съобщенията
...... свързват с индустрията, търговията, транспорта, логистиката и просперитета. Консервацията и ремонтът на стойност 917 826 лв. са финансирани от бюджета на Министерството на транспорта и съобщенията.
Приключи реставрацията на фасадата на Министерството на транспорта и съобщенията
...... с индустрията, търговията, транспорта, логистиката и просперитета. Консервацията и ремонтът на стойност 917 826 лв. са финансирани от бюджета на Министерството на транспорта и съобщенията.
Сградата на Министерството на транспорта и съобщенията МТС върна автентичния
...... търговията, транспорта, логистиката и просперитета. Консервацията и ремонтът на стойност 917 826 лева са финансирани от бюджета на Министерството на транспорта и съобщенията, съобщиха от ведомството.
Възстановяването на минералната баня в Княжево е задача която си
...... завършим училището в „Манастирски ливади – запад“ и ще изградим нова училищна сграда в „Драгалевци“, каза кандидатът за районен кмет на район „Витоша“ Теодор Петков.trud.bg
Възстановяването на минералната баня в Княжево е задача която си
...... завършим училището в „Манастирски ливади – запад“ и ще изградим нова училищна сграда в „Драгалевци“, каза кандидатът за районен кмет на район "Витоша" Теодор Петков.
Възстановяването на минералната баня в Княжево е задача която си
...... завършим училището в „Манастирски ливади – запад“ и ще изградим нова училищна сграда в „Драгалевци“, каза кандидатът за районен кмет на район "Витоша" Теодор Петков.
Възстановяването на минералната баня в Княжево е задача която си
...... завършим училището в „Манастирски ливади – запад“ и ще изградим нова училищна сграда в „Драгалевци“, каза кандидатът за районен кмет на район "Витоша" Теодор Петков. FaceBookTwitterPinterest
Следвайте Гласове в Телеграм Възстановяването на минералната баня в Княжево е задача
...... завършим училището в „Манастирски ливади – запад“ и ще изградим нова училищна сграда в „Драгалевци“, каза кандидатът за районен кмет на район "Витоша" Теодор Петков.
Възстановяването на минералната баня в Княжево е задача която си
...... "Драгалевци", каза кандидатът за районен кмет на район "Витоша" Теодор Петков. Антон Хекимян заедно с кандидата за кмет на район "Витоша" Теодор Петков Източник: ПП ГЕРБ
Възстановяването на минералната баня в Княжево е задача която си
...... завършим училището в „Манастирски ливади – запад“ и ще изградим нова училищна сграда в „Драгалевци“, каза кандидатът за районен кмет на район "Витоша" Теодор Петков.
Възстановяването на минералната баня в Княжево е задача която си
...... завършим училището в „Манастирски ливади – запад“ и ще изградим нова училищна сграда в „Драгалевци“, каза кандидатът за районен кмет на район "Витоша" Теодор Петков.
Възстановяването на минералната баня в Княжево е задача която си
...... завършим училището в „Манастирски ливади – запад“ и ще изградим нова училищна сграда в „Драгалевци“, каза кандидатът за районен кмет на район „Витоша“ Теодор Петков.
Възстановяването на минералната баня в Княжево е задача която си
...... училището в „Манастирски ливади – запад“ и ще изградим нова училищна сграда в „Драгалевци“, каза кандидатът за районен кмет на район "Витоша" Теодор Петков. /БГНЕС
TD На 30 км от Пловдив може да се види
...... пещери и издълбани в скалите "образи на человеци и на други животни, изписани даже в целия им образ, като например змия изписана, человек и други такива“.
Усилията са насочени към промяна на плана от 2004г който
...... имота, без ново застрояване. Остава предложението и връщане на най-старото отреждане на имота „за детско заведение“, за каквото се е използвала сградата преди придобиването ѝ.
Отпада окончателно изграждане на хотел на 7 етажа на мястото
...... емблематичната сграда на бул. „Патриарх Евтимий“ № 7 и е част от цялостната ѝ политика за опазване на културното, историческото и архитектурното наследство на София.
Главният архитект на София арх Здравко Здравков е издал
...... й", пише още кметът. Остава предложението и връщане на най-старото отреждане на имота "за детско заведение", за каквото се е използвала сградата преди придобиването ѝ.
Минералната баня в Банкя бе открита днес от кмета на
...... помещения. До решението управлението на банята да бъде дадено на "Софийски имоти" се стигна, след като не се намериха кандидати за концесионери на минералната баня.
Минералната баня в Банкя отвори врати за граждани днес Посетителите
...... помещения. До решението управлението на банята да бъде дадено на "Софийски имоти" се стигна, след като не се намериха кандидати за концесионери на минералната баня.
Спортният министър Радостин Василев гръмко обяви че за 4 месеца
...... едни пари. Без значение от крайния резултат. Явно в момента е важно да се усвоява и то ударно. Че току виж взели да ги сменят.
Спортният министър Радостин Василев гръмко обяви че за 4 месеца
...... на едни пари. Без значение от крайния резултат.Явно в момента е важно да се усвоява и то ударно. Че току виж взели да ги сменят.
Главният архитект на община Пловдив арх Димитър Ахрянов е провел
...... заданието и процедиране преди изготвяне на проекта. Т. е проектът трябва да се върне от НИНКН , за да можем да обработим всичко" коментира Ахрянов.
Възстановяват рухналата подпорна стена на Сахат тепе в Пловдив Оригиналният
...... идват на разходка тук. През 70-те години част от скалите са разрушени, за да се освободи пространство за ресторант, който така и не е построен.
Парижката катедрала Нотр Дам в Париж ще бъде възстановена в
...... Еманюел Макрон обеща то да се извърши за 5 години, като в словото си тогава намекна, че за шпила може да се използва съвременен дизайн.
Парижката катедрала Нотр Дам ще бъде възстановена в автентичния си
...... БНТ. Очаква се "Нотр Дам" да бъде напълно реставрирана преди Олимпийските игри през 2024 година, на които домакин е Париж. По публикацията работи: Елка Василева
Още по темата Собствениците на къщата с тапетите в Капана
...... във вид на бръшлян и цветя. Както "Марица" писа, оригиналното хрумване предизвика проверка, разпоредена от министъра на културата Боил Банов по сигнал на районния кмет.
Защитният ров около крепостта Баба Вида е пълен с вода
...... се намира на северозападния бряг на големия завой на река Дунав при Видин. Обявена е за паметник на културата с национално значение от 1964 г.
Видин Възстановяването на турския барутен погреб във Видин е съобразено
...... и оръжие“, каза Филипова. Друг възстановен барутен склад със същите размери се намира в гр. Ардино, но той не е вкопан в земята. Анна Лозанова
След 15 месеца втората по големина жп гара в София
...... културно-историческо наследство. Днес беше дадено символичното начало на обновлението на гаровия комплекс, който е дело на арх. Панайот Калчев и е изграден през 1930 г.
Катедралата Нотр Дам ще бъде възстановена в автентичния й видФранция
...... и било. Всички знаем, че Нотр Дам има 3D копие, така че всичко ще бъде направено така, както е било“, каза още българският скулптор.
Когато катедралата Парижката Света Богородица бъде реставрирана след опустошителния пожар
...... на 1300 дървета за изграждането на рамката на свода. Според дружеството дъбовете трябва да са от горите в Нормандия, за да се запази първоначалната конструкция./economic.bg
Varna24 bg Мостчето на желанията в Морската градина ще бъде възстановено
...... и възстановяване на розариума. Припомняме, че около 48 декара обща площ ще бъдат ремонтирани в парка. Предвидената сума за цялостната дейност е почти 2.5 милиона лева.
София Съживяването на стар радиоапарат до автентичния му вид отнема
...... джоба ни. Хората ще продължат да слушат радио и в бъдеще, уточни той, като обясни, че разпространението на къси радиовълни е най-сигурната връзка. Виктория МЕСРОБОВИЧ-КУВЕНДЖИЕВА
Поп Панайотовата къща във великотърновското село Арбанаси която е частна собственост
...... представена актуална информация за състоянието на сградата и за проектираната реставрация. Страховете, че ще има промени по вида на къщата, са напълно неоснователни, увериха архитектите.
Кметът на София Йорданка Фандъкова е сформирала експертна комисия от
...... на ул. "Шести септември", на бул. "Васил Левски" и на бул. "Цариградско шосе". "Царските конюшни" пламнаха през тази нощ. Изгорял е целият покрив на комплекса.
Експертна комисия ще оцени щетите на пострадалата тази нощ от
...... Крум”, както и възстановяване на свален статут на още три сгради - на ул. “Шести септември”, на бул. “Васил Левски” и на бул. “Цариградско шосе”.
Кметът на София Йорданка Фандъкова сформира експертна комисия с представители
...... Крум”, както и възстановяване на свален статут на още три сгради - на ул. „Шести септември”, на бул. „Васил Левски” и на бул. „Цариградско шосе”.
Перник Пернишката крепост ще запази автентичния си вид и ще
...... от тях уеб сайт за Пернишката крепост, който се казва „/Не/Познатата крепост“. Неговата цел е да се покаже истинската стойност, същността и величието на крепостта.
Спортният директор Пламен Марков и адвокат Първан Първанов който
...... на УЕФА ЦСКА-София се връща в автентичния си вид и не може да има спекулации по тази тема, заяви изпълнителният директор на червените Пламен Марков.
Решението с което УЕФА обяви че ЦСКА София е допуснат до
...... на клуба. Към зелената светлина за участие в Европа той добави и подписването на договора за ползване на "Българска армия" и базата в Панчарево.Очаквайте подробности!
Връщането на ЦСКА в евротурнирите ще помогне на тима да
...... всякакви екзотики. Ние не можем да спрем някого, ако иска да обжалва, но мисля, че решението ще бъде негативно. Това е окончателно решение", сподели Първанов.
Ръководството на ЦСКА коментира решението на Европейската футболна централа която
...... Трябва да създадем отбор, който да е конкурентоспособeн в Европа. УЕФА кореспондира с футболния съюз. Това е нормално, но подробностите не мога да дам", завърши Марков.
Връщането на ЦСКА в евротурнирите ще помогне на червените да
...... екзотики. Ние не можем да спрем някого, ако иска да обжалва, но мисля, че решението ще бъде негативно. Това е окончателно решение", каза адвокат Първанов.
Мащабният ремонт на Бачковския манастир ще започне до дни и
...... година ще бъде изцяло ремонтирано и новото крило на манастира, като там ще се подменят канализационната и отводнителната система. Ще се изгради и парно отопление.









_5816767924709599655_small.jpeg?19:00:10)




































