Началото на голямото застрояване на казармите в Пловдив? Вдигат 12-етажни блокове в Гладно поле
Какво ще е бъдещето на казармите в „ Гладно поле “? TrafficNews нееднократно е писал по тематиката, която в този мандат е позабравена, само че в предходните имаше сериозна полемика. Докато огромният въпрос е в какво да се трансфорат 450-те декара, които са към настоящото отделение в регион „ Източен “, от страната бул. „ Освобождение “ към този момент стартира съществено строителство.
Прочетете още
Там също парцелите са с отпаднала нужда и са благосъстоятелност на страната в лицето на военното министерство. Част от тях обаче са били продадени преди близо 20 години, а върху два от тях към този момент приготвя строителство.
Става дума за имоти, които се намират директно зад мол „ Плаза “. Единият на ул. „ Капитан Коста Паница “, който е с величина от 3825 кв.м, а другият е прилежащ с изход на бул. „ Освобождение “ от 2631 кв.м.
Преди малко повече от месец старите военни постройки бяха съборени, а багери започнаха да заравняват терените.
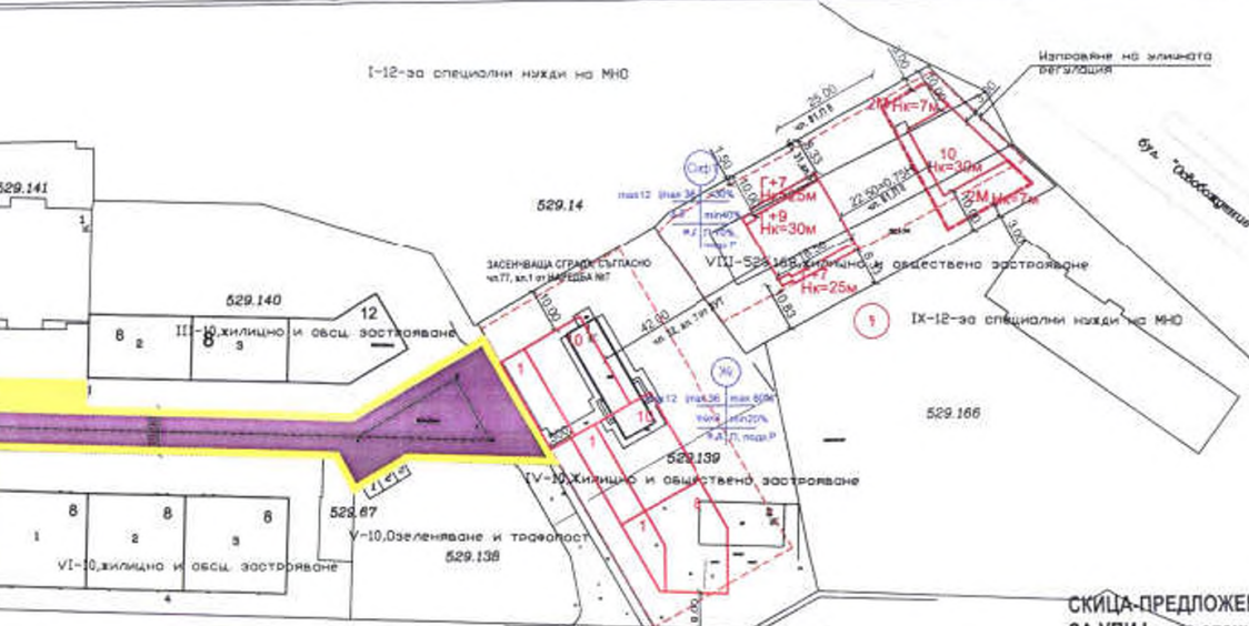
Проверка на TrafficNews сподели, че за зоната към този момент има публикуван Подробен устройствен план – ПРЗ, който е бил утвърден от Общинския съвет през 2022 година по предложение на гл. архитект Димитър Ахрянов. Според скиците на парцелите ще бъдат вдигнати 5 жилищни здания с височина сред 25 метра и 36 метра - до 12-етажно строителство.
По-големият парцел, който е от страната ул. „ Кап. Коста Паница “, индикаторите по Общ устройствен план са „ ЖГ “ или височина до 12ет./36м., Пзастр. до 30%, кинт до 3.3, озеленяване 40%, или към 12 500 кв.м РЗП. Другият е в зона СМФ1 и планува две 30-метрови здания съгласно силуетите, дадени в скицата. РЗП-то там ще е към 8500 кв.м. Иначе казано на двата парцела могат да се построят близо 21 000 кв.м РЗП, или над 260 жилището.
Зоната към мол „ Плаза “ стартира съществено да се обитава, а трафикът в почивни и празнични дни е по-натоварен даже от централна градска част поради редицата търговски обекти. Построяването на още повече жилища ще утежни и паркирането, и трафика в зоната.
Бъдещето на казармите?
В съседство на двата парцела, военните имат много по-мащабни имоти. Единият е с величина от близо 10 000 кв.м и е с отпаднала нужда. Преди години, до момента в който Красимир Каракчанов бе боен министър той даже пусна търг за неговата продажба, като концепцията бе военните да получат компенсации жилища. Тогава обаче кабинетът падна и този търг бе анулиран. От другата страна е към момента настоящо отделение със 17 000 кв.м величина. Според Общия организационен проект и двата парцела са СМФ1 и на тях в бъдеще е допустимо съществено застрояване.
„ Гладно поле “ и огромният парк?
Най-голямото внимание е към сърцевината на квартала, където са над 450 дка, които са с отпаднала нужда. Първата концепция за терените бе в мандата на Иван Тотев, когато там трябваше да се построи второстепенен градски център с голям брой административни здания, площади, зелени площи и даже център за развойна активност за IT технологии.
Неговият правоприемник Здравко Димитров отхвърли тази концепция, а при смяната на Общия организационен, градските управляващи съумяха да извоюват там да се построи голям парк в центъра на парцела, а също по този начин да се заложи учебно заведение, детска градина и детски ясли. Въпреки това една част от имота – по ул. „ Лев. Толстой “ и ул. „ Ген. Радко Димитриев “ се планува строителството на жилищни здания.
Досега обаче не е ясно изобщо дали кметът Костадин Димитров има някаква връзка с военното министерство за дарението на тези имоти. Още по-притеснително е, че преди дни Министерски съвет оповестиха, че ще продадат 4400 държавни парцела, с отпаднала нужда. Средствата от тях ще бъдат импортирани във фонд за построяването на детски градини и учебни заведения. Очаква се скоро описът с парцели да бъдат бъде оповестен. Освен казармите в „ Гладно поле “, в Пловдив има още „ апетитни “ военни имоти – в подножието на Младежкия рид, както и бул. „ Освобождение “.
Прочетете още
Там също парцелите са с отпаднала нужда и са благосъстоятелност на страната в лицето на военното министерство. Част от тях обаче са били продадени преди близо 20 години, а върху два от тях към този момент приготвя строителство.
Става дума за имоти, които се намират директно зад мол „ Плаза “. Единият на ул. „ Капитан Коста Паница “, който е с величина от 3825 кв.м, а другият е прилежащ с изход на бул. „ Освобождение “ от 2631 кв.м.
Преди малко повече от месец старите военни постройки бяха съборени, а багери започнаха да заравняват терените.
Проверка на TrafficNews сподели, че за зоната към този момент има публикуван Подробен устройствен план – ПРЗ, който е бил утвърден от Общинския съвет през 2022 година по предложение на гл. архитект Димитър Ахрянов. Според скиците на парцелите ще бъдат вдигнати 5 жилищни здания с височина сред 25 метра и 36 метра - до 12-етажно строителство.
По-големият парцел, който е от страната ул. „ Кап. Коста Паница “, индикаторите по Общ устройствен план са „ ЖГ “ или височина до 12ет./36м., Пзастр. до 30%, кинт до 3.3, озеленяване 40%, или към 12 500 кв.м РЗП. Другият е в зона СМФ1 и планува две 30-метрови здания съгласно силуетите, дадени в скицата. РЗП-то там ще е към 8500 кв.м. Иначе казано на двата парцела могат да се построят близо 21 000 кв.м РЗП, или над 260 жилището.
Зоната към мол „ Плаза “ стартира съществено да се обитава, а трафикът в почивни и празнични дни е по-натоварен даже от централна градска част поради редицата търговски обекти. Построяването на още повече жилища ще утежни и паркирането, и трафика в зоната.
Бъдещето на казармите?
В съседство на двата парцела, военните имат много по-мащабни имоти. Единият е с величина от близо 10 000 кв.м и е с отпаднала нужда. Преди години, до момента в който Красимир Каракчанов бе боен министър той даже пусна търг за неговата продажба, като концепцията бе военните да получат компенсации жилища. Тогава обаче кабинетът падна и този търг бе анулиран. От другата страна е към момента настоящо отделение със 17 000 кв.м величина. Според Общия организационен проект и двата парцела са СМФ1 и на тях в бъдеще е допустимо съществено застрояване.
„ Гладно поле “ и огромният парк?
Най-голямото внимание е към сърцевината на квартала, където са над 450 дка, които са с отпаднала нужда. Първата концепция за терените бе в мандата на Иван Тотев, когато там трябваше да се построи второстепенен градски център с голям брой административни здания, площади, зелени площи и даже център за развойна активност за IT технологии.
Неговият правоприемник Здравко Димитров отхвърли тази концепция, а при смяната на Общия организационен, градските управляващи съумяха да извоюват там да се построи голям парк в центъра на парцела, а също по този начин да се заложи учебно заведение, детска градина и детски ясли. Въпреки това една част от имота – по ул. „ Лев. Толстой “ и ул. „ Ген. Радко Димитриев “ се планува строителството на жилищни здания.
Досега обаче не е ясно изобщо дали кметът Костадин Димитров има някаква връзка с военното министерство за дарението на тези имоти. Още по-притеснително е, че преди дни Министерски съвет оповестиха, че ще продадат 4400 държавни парцела, с отпаднала нужда. Средствата от тях ще бъдат импортирани във фонд за построяването на детски градини и учебни заведения. Очаква се скоро описът с парцели да бъдат бъде оповестен. Освен казармите в „ Гладно поле “, в Пловдив има още „ апетитни “ военни имоти – в подножието на Младежкия рид, както и бул. „ Освобождение “.
Източник: trafficnews.bg
КОМЕНТАРИ




